DROIT AU BAIL AVEC VITRINE - MONEGHETTI- BUREAU OU BOUTIQUE

Réf.
MIMMO21
Prix
350 000 €
Type de transaction
Vente professionnelle
Type de produit
Cessions de droit au bail
Quartier
Moneghetti
Ville
Monaco
Etage
RDC
Superf. totale
60 m²

Description de la propriété

Situé dans le quartier de Moneghetti, à la frontière entre Monaco et la France, ce local bénéficie d’une excellente visibilité.

Il se trouve en rez-de-chaussée avec vitrine sur rue. Climatisé, il convient parfaitement à des activités professionnelles ou commerciales, à l’exception des métiers de bouche.

Bail commercial 3/6/9 ans.
Loyer 3082,00€ cc/mois
Échéance du bail 28/02/2027

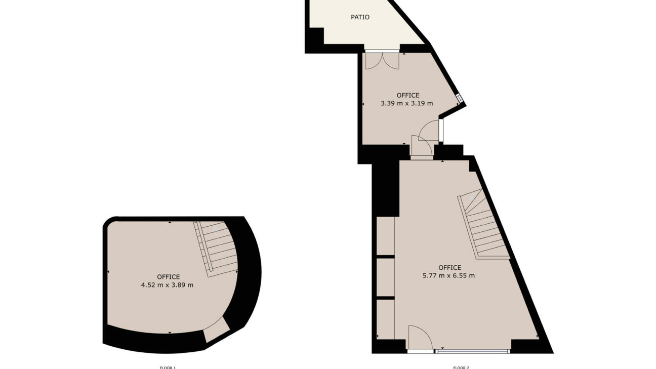
Ce local  est composé de: 

Une pièce principale aménagée en bureaux  

Un deuxième pièce aménagée en bureau

Une terrasse privative

Un toilette avec fenêtre 

Une troisième pièce aménagée en bureaux au sous-sol

Visite virtuelle

Travaillons ensemble

Nous sommes à votre disposition pour vous accompagner dans tous vos projets immobiliers à Monaco, qu’ils soient résidentiels ou commerciaux.
Que vous souhaitiez acheter, vendre ou louer, notre équipe est là pour vous conseiller et vous guider.
Contactez-nous dès aujourd’hui : nous serons ravis d’échanger avec vous et de vous aider à concrétiser votre projet.


Aurélia Jofroit de Polignac

Aurélia Jofroit de Polignac

négociatrice aurelia@marsanimmobiliermonaco.mc +377 93 25 01 01
Sasha Bognitcheff

Sasha Bognitcheff

Assistante administrative et négociatrice sasha@marsanimmobiliermonaco.mc +377 93 25 01 01
DROIT AU BAIL AVEC VITRINE - MONEGHETTI- BUREAU OU BOUTIQUE