LOCAL COMMERCIAL/BUREAU A VENDRE - FONTVIEILLE

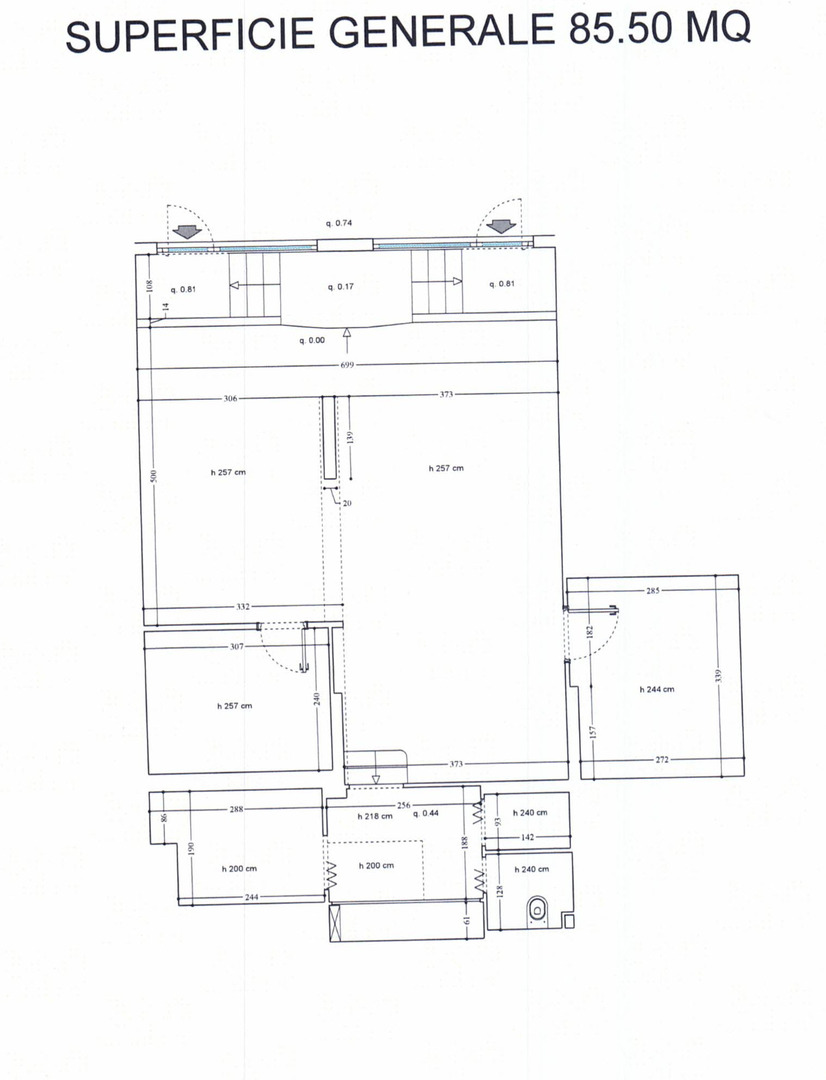
Ce bien commercial est situé dans le bâtiment Michelangelo à Fontvieille. Il dispose d'une grande vitrine lumineuse avec un accès double, offrant une excellente luminosité naturelle. La disposition comprend une grande pièce principale, deux salles latérales à l'arrière, une salle d'utilité, une salle de stockage, des toilettes et un grand placard de rangement. Actuellement, l'activité commerciale est un salon de coiffure jusqu'au 30/09/2026.

Ref.
MIMMICH70
Type de produit
Bureau
Superficie hab.
87 m²
Superficie totale
85,50 m²
Etat
Bon état
Pays
Monaco
Quartier
Fontvieille
Immeuble
Le Michelangelo
Prix
2 756 000 €

Situation du bien