COMPLESSO DI UFFICI IN VENDITA - A FONTVIEILLE

Rif.
MIMTHALES3
Num stanze
Non défini
Prezzo
13 250 000 €
Tipo di transazione
Vendita professionale
Tipo di proprietà
Ufficio
Residenza
Le Thalès
Quartiere
Fontvieille
Città
Monaco
Livello
7ème
Superf. totale
398 m²

Description de la propriété

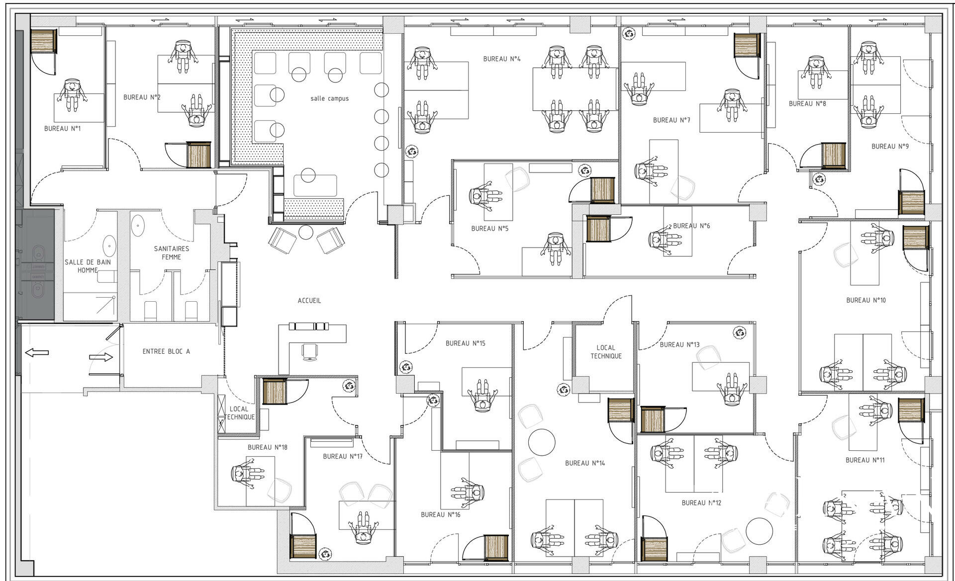
Si sviluppa al 7° piano dell'edificio "Le Thales": una collezione di 18 esclusivi uffici di alta gamma, completamente arredati con una zona reception, una zona cucina, una tisaneria, tre bagni e una doccia.
Parcheggio opzionale: 250.000€

Gli uffici sono separati da pareti divisorie in vetro insonorizzate, che consentono alla luce naturale di fluire attraverso gli spazi.

Con vista sul quartiere di Fontvieille e sul Boulevard Charles III, ea pochi passi dalla spiaggia Marquet e dal lungomare di Cap d'Ail.

Localizzazione

Lavoriamo insieme

Siamo a vostra disposizione per accompagnarvi in tutti i vostri progetti immobiliari a Monaco, siano essi residenziali o commerciali. Che desideriate acquistare, vendere o affittare, il nostro team è qui per consigliarvi e guidarvi. Contattateci oggi stesso: saremo lieti di parlare con voi e di aiutarvi a realizzare il vostro progetto.


Aurélia Jofroit de Polignac

Aurélia Jofroit de Polignac

négociatrice aurelia@marsanimmobiliermonaco.mc +377 93 25 01 01
Sasha Bognitcheff

Sasha Bognitcheff

Assistante administrative et négociatrice sasha@marsanimmobiliermonaco.mc +377 93 25 01 01
COMPLESSO DI UFFICI IN VENDITA - A FONTVIEILLE